forum.Ohota.by в Telegram - ВОЙТИ

лодка своими руками

Самодельные лодочные моторы, транспортные средства, лодки,а также все то что приводится в движения двигателем и не только.

Модератор: Yurkoff

Поделиться ...

лодка своими руками

Сообщение semen4enko » 01 фев 2012, 10:35

я делал по этим чертежам
Спецификация консрукции корпуса:
1- привальный брус, сосна 10х20 мм; 2- внутренний привальный брус, сосна 10х20 мм; 3- обвязка шпангоута А, фанера 10х20 мм; 4- днищевые стрингеры, сосна 10х40 мм; 5- обвязка бимса, фанеры 10х65 мм; 6- шпангоут А, фанера δ=10 мм; 7- бак, фанера δ=6 мм; 8- обвязка шпангоута Б, В, фанера 10х20 мм; 9- борт, фанера δ=6 мм; 10- днище, фанера δ=6 мм; 11- лыжа, фанера δ=6 мм; 12- зашивка банки, фанера δ=6мм; 13- шпангоут Б, фанера δ=6 мм; 14- шпангоут В, фанера δ=6 мм; 15- «мокрый» уголок, один слой стеклоткани; 16- карлингс, фанера 10х20 мм; 17- обвязка шпангоута Д, фанера 10х20 мм; 18- зашивка банки, фанера δ=6 мм; 19- карлингс, фанера 10х20 мм; 20- шпангоут Д, фанера δ=6 мм; 21- карлингс, фанера 10х20 мм; 22- накладка на транец, фанера δ=10 мм; 23- транец, фанера δ=10 мм; 24- обвязка транца, фанера 10х20 мм; 25- кница, фанера δ=10 мм; 26- стенка, фанера δ=6 мм; 27- внутренняя оклейка скул, полосы стеклоткани 2 слоя, шириной 80-100 мм; 28- внешняя оклейка скул, полосы стеклоткани 1 слой, шириной 100 мм; 29- рейка, сосна 30х30 мм.


выпилил из фанеры 6мм 2 транца и склеил эпоксидной смолой между собой.
Вложения
02.gif
cartop.gif
Последний раз редактировалось semen4enko 01 фев 2012, 11:17, всего редактировалось 2 раз(а).
Димон26МВ

За это сообщение автора semen4enko поблагодарил:
ozzi1981
Аватара пользователя
semen4enko
Полноправный участник
 
Сообщения: 47
Зарегистрирован: 03 май 2011, 12:06
Откуда: Минеральные Воды
Репутация: 0 [ ? ]
Благодарил (а): 8 раз.
Поблагодарили: 9 раз.

forum.Ohota.by в Telegram - ВОЙТИ

Re: лодка своими руками

Сообщение semen4enko » 01 фев 2012, 10:50

и вот что получилось
Вложения
05102011186.jpg
склеил фанеру и разчертил
06102011191.jpg
выпилил лобзиком
06102011193.jpg
скрутил мягкой проволокой
06102011194.jpg
06102011195.jpg
07102011197.jpg
проклеил швы стеклотканью
08102011198.jpg
пропитал всё эпоксидной смолой
09102011203.jpg
вставил шпангоуты
10102011205.jpg
открутил транц и вставил стрингеры на пол
11102011206.jpg
прикрепил внутрений брус
14102011208.jpg
зашил нос и поставил привальный брус, ну конечно всё зашпаклевал эпоксидной смолой со стеклотканью и покрасил
17112011213.jpg
зарегистрировал и стал обладателем маломерного судна
Последний раз редактировалось semen4enko 01 фев 2012, 11:10, всего редактировалось 2 раз(а).
Димон26МВ

За это сообщение автора semen4enko поблагодарил:
Nord
Аватара пользователя
semen4enko
Полноправный участник
 
Сообщения: 47
Зарегистрирован: 03 май 2011, 12:06
Откуда: Минеральные Воды
Репутация: 0 [ ? ]
Благодарил (а): 8 раз.
Поблагодарили: 9 раз.

Re: лодка своими руками

Сообщение semen4enko » 01 фев 2012, 11:07

пока мною лодка ещё не испытана, поэтому по ходовым характеристикам сказать ничего не могу. На строительство ушло примерно 30м стеклоткани ,4,5 листа фанеры,15 л эпоксидка+отвердитель ,8 литровое ведро алюминиевой пудры, на галтели понадобилось мелких древесдых опилок но я их не мерял ,деревянные бруски разного размера, банка краски и того (+ -)с регистрацией и с обмыванием уложился в пять тысяч рублей.
Димон26МВ
Аватара пользователя
semen4enko
Полноправный участник
 
Сообщения: 47
Зарегистрирован: 03 май 2011, 12:06
Откуда: Минеральные Воды
Репутация: 0 [ ? ]
Благодарил (а): 8 раз.
Поблагодарили: 9 раз.

Re: лодка своими руками

Сообщение ANDREY674 » 01 фев 2012, 15:53

semen4enko писал(а):,8 литровое ведро алюминиевой пудры,

А пудру где брал? У террористов заначку нашёл? :-)
изготовление п о р н о г р а ф и и преследуется по Закону.
--------------------------------------------------------------------------------
"FLINC T320L" , " ForwardFBC-520B" 2.7л.с. "NOMAD NL 160F" 5 л.с.
Аватара пользователя
ANDREY674
Гуру
 
Сообщения: 4308
Зарегистрирован: 21 сен 2011, 22:14
Откуда: Санкт Петербург (Металлострой)
Репутация: 15 [ ? ]
Благодарил (а): 223 раз.
Поблагодарили: 298 раз.

Re: лодка своими руками

Сообщение балу » 01 фев 2012, 18:56

парни, раз уж распочали новую темку, значит спрошу тут - ходовые качества лодки с плоским дном, как отличаются от качеств трапецивидной, как у семеченки?
лень - это естественная реакция организма на бесполезную работу. истина где то рядом... женат
Аватара пользователя
балу
Гуру
 
Сообщения: 1692
Зарегистрирован: 31 окт 2011, 20:58
Репутация: 14 [ ? ]
Благодарил (а): 263 раз.
Поблагодарили: 223 раз.

Re: лодка своими руками

Сообщение ANDREY674 » 01 фев 2012, 19:33

балу писал(а):ходовые качества лодки с плоским дном, как отличаются от качеств трапецивидной

С точки зрения глиссирования по спокойной воде, плоское днище самый идеальный вариант.
При ходе на волне, плоское дно получает сильные удары, подо мной раз кресло развалилось, поэтому обводы делают килеватыми. Чем больше килеватость, тем мягче ход по волне.
У Димона интересный вариант, обзывается гидролыжей. На небольших скоростях при волне работают наклонные участки днища, при выходе на чистое глиссирование днище скользит на плоском участке.
Только это всё для хороших скоростей.
изготовление п о р н о г р а ф и и преследуется по Закону.
--------------------------------------------------------------------------------
"FLINC T320L" , " ForwardFBC-520B" 2.7л.с. "NOMAD NL 160F" 5 л.с.

За это сообщение автора ANDREY674 поблагодарил:
балу
Аватара пользователя
ANDREY674
Гуру
 
Сообщения: 4308
Зарегистрирован: 21 сен 2011, 22:14
Откуда: Санкт Петербург (Металлострой)
Репутация: 15 [ ? ]
Благодарил (а): 223 раз.
Поблагодарили: 298 раз.

Re: лодка своими руками

Сообщение балу » 01 фев 2012, 19:49

вот потому и обидно за москву-30, был бы двиг, уже бы думал в какую то одну сторону, а так опять сплошные не понятки :-( ну и с весом , что у юзовки, что у димона - перебор 100%. у нас в городе есть стеклозавод, который эту самую стеклоткань выпускает, я бы фанеру использовал, как форму, а стеклопластик снимал и за тем усиливал, завод выпускает подобные лодки, но нет реализации, так как лодка 1,5 на 2,4 одноместная, стоит 3,5 миллиона нашими - курс 270, ткань тршп в 4ре слоя не сломать, при ударе 10кг кувалдой пластик только белеет, сквозного отв. не получается, советовать не буду, но когда юзовка свою выставил на обозрение, я сразу написал, что очень класная форма для поточного производства, если сподоблюсь себе начать делать, буду делать каркас из профиля 20 на 20, обшивку буду с картона делать, затем разделительный слой,и стекло с полиэфиркой, после застывания картон изнутри буду вырезать, мне форма не нужна, последователей не наблюдаю, и снова стекло со смолой, на заводе в 70е годы делали стеклопластиковый автомобиль *старт* на базе 21 волги, у нас в городе ещё 2 бегает, если кто смотрел внимательно *кавказкая пленница*, то в самом конце , где пленница уезжает, на заднем плане показан автомобиль, это и есть старт, было выпущено всего 30 штук, потом сняли, в массовое не пошёл, так как ходовка и двиг у 21 вечные, а тут ещё и кузов вечный, мой батька на таком работал, один раз в дтп попал, 51 газон на перекрёстке не пропустил этого старта, у старта только фары вылетили, а газон 2 раза перевернулся и кузов отвалился, кстати, если кто знает удочки каскад - это у меня выпускаются, при советском союзе у нас их было не купить, всё шло на просторы родины, а сейчас лежат , ни кто не берёть, тяжёлые, ни каких новых технологий с 60 годов, козлы :de_vil:
лень - это естественная реакция организма на бесполезную работу. истина где то рядом... женат
Аватара пользователя
балу
Гуру
 
Сообщения: 1692
Зарегистрирован: 31 окт 2011, 20:58
Репутация: 14 [ ? ]
Благодарил (а): 263 раз.
Поблагодарили: 223 раз.

Re: лодка своими руками

Сообщение semen4enko » 02 фев 2012, 11:00

мужики у меня есть ешё один проект, но чертежи какието очень размазаные ничего не поимёшь

ТАЙМЕНЬ350 ,мож кто знает как их открыть?



Проект маленькой моторной лодки "Таймень 350"


Основные характеристики:
Длина наибольшая, м - 3.5
Ширина ,м - 1.4
Высота борта на миделе, м - 0,55
Вес лодки, кг- 75
Грузоподъёмность, кг - 300
Максимальная мощность мотора, л.с. - 15

Лодка изготавливается из фанеры, методом сшей и склей (СИС)
Корпус снаружи оклеивается одним слоем стеклоткани марки Т11, на эпоксидной смоле.
Лодка снабжена аварийным запасом непотопляемость в виде воздушных баков, в корме два бака по 40 литров, на миделе два бака по 30 литров и форпик, бак 42 литра. Общий объём 182 литра. Общий объём конструкции корпуса лодки примено 98 литров. Баки снабжены герметичными лючками для их проверки и вентиляции на период хранения.
Под сиденьем водителя, находится место для топливного бака и инструментов объёмом около 175 литров, в центральной банке- рундук объёмом около 105 литров, носовая банка- рундук объёмом около 62 литров.

Для постройки лодки требуются следующие материалы:
Обшивка корпуса и некоторые детали, фанера 1.22х2.44 м ФСФ, берёзовая 4мм - 3 листа
Поперечный набор, настилы сидений, фанера 1.22х2.44 м ФСФ, хвойная 9мм - 2листа, можно заменить на фанеру берёзовую 6 мм.
Эпоксидная смола "Этал 370" 8 литров, отвердитель "Этал 45М" 4 литра, или смола ЭД20 12 литров и отвердитель ПЕПА, и т.п.
Стеклоткань марки Т11, 14 п.м.
Среднее время постройки лодки 70-75 ч.ч. Зависит от опыта строителя.
Стрингеры сосновая рейка 12х40, 12 п.м.
Привальный брус, сосна 12х25, 15. п.м.
Перечень чертежей для постройки лодки.
Вложения
01.gif
01.gif (5.29 КБ) Просмотров: 75324
02.gif
02.gif (5.22 КБ) Просмотров: 75324
03.gif
03.gif (5.49 КБ) Просмотров: 75324
04.gif
04.gif (4.85 КБ) Просмотров: 75324
05.gif
05.gif (7.21 КБ) Просмотров: 75324
06.gif
06.gif (14.72 КБ) Просмотров: 75324
07.gif
07.gif (5.1 КБ) Просмотров: 75324
08.gif
08.gif (5.52 КБ) Просмотров: 75324
09.gif
09.gif (7.42 КБ) Просмотров: 75324
10.gif
10.gif (5.76 КБ) Просмотров: 75324
teor.gif
teor.gif (5.31 КБ) Просмотров: 75324
Димон26МВ
Аватара пользователя
semen4enko
Полноправный участник
 
Сообщения: 47
Зарегистрирован: 03 май 2011, 12:06
Откуда: Минеральные Воды
Репутация: 0 [ ? ]
Благодарил (а): 8 раз.
Поблагодарили: 9 раз.

Re: лодка своими руками

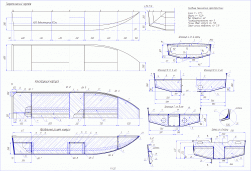
Сообщение semen4enko » 02 фев 2012, 11:57

после испытаний своей первой лодки ,буду пробовать построить СЕВЕР 420
Спецификация конструкции корпуса моторной лодки "Север 420"

Основные технические характеристики:
Длина наибольшая, м – 4.2
Ширина наибольшая, м – 1.7
Ширина по скуле, м – 1.5
Килеватость на транце, градусов – 16
Ширина гидролыжи, м – 0.2
Вес корпуса, без мотора, кг – 190
Грузоподъёмность, кг – 400
Пассажировместимость, чел – 4
Высота транца, мм - 380
Мощность подвесного двигателя, л.с. -20-40

№ п.п. Наименование детали Материал Сечение, мм Толщина, мм Примечание
1 Внутренний привальный брус сосна 20х30
2 Привальный брус сосна 15х30
3 Карлингс палубный сосна 20х20
4 Карлинсы бака сосна 20х20
5 Комингс фанера 6х40 6
6 Шпангоут №1 фанера 8
7 Бимс шпангоута №1 фанера 8
8 Обвязка шпангоута №1 фанера 8
9 Настил фанера 8
10 Обвязка форштевня сосна 20х40
11 Шпангоут №2 фанера 8
12 Обвязка килевой балки сосна 20х20
13 Шпангоут №3 фанера 8
14 Настил сиденья фанера 8
15 Стенка сиденья фанера 6
16 Слани фанера 10
17 Килевая балка фанера 10
18 Брызгоотбойник сосна 15х45
19 Продольные реданы сосна 13х40
20 Шпангоут №4 фанера 8
21 Обвязка шпангоута №4 фанера 10х20
22 Рейка сосна 20х20
23 Спинка сиденья фанера 6
24 Рейка сосна 20х20
25 Упор крышки сиденья фанера 8х40 8
26 Шпангоут №5 фанера 8
27 Обвязка шпангоута №5 фанера 10х20
28 Стрингер сосна 20х40
29 Обвязка шпангоута №5 сосна 20х20
30 Обвязка шпангоута №6 сосна 20х20
31 Крышка дивана фанера 8
32 Шпангоут №6 фанера 8
33 Спинка дивана фанера 6
34 Транец фанера 2х8
35 Усиление транца фанера 2х8
36 Обвязка транца сосна 20х40
37 Обвязка транца сосна 20х20
38 Дно рецеса фанера 8
39 Настил фанера 8
40 Палуба фанера 6
41 Борт фанера 6
42 Днище фанера 6
43 Лыжа фанера 6
44 Бимс шпангоута №2 фанера 10
45 Стенка рецесса фанера 6
46 Опора крышки дивана фанера 8х40 8
47 Форштевень фанера 10
48 Оклейка скулы, мокрый угольник стеклоткань ЭЗ-200 6 слоёвх100мм или Т11- ТВГ 3 слоя
49 Оклейка скулы, мокрый угольник стеклоткань ЭЗ-200 6 слоёвх100мм или Т11- ТВГ 3 слоя
50 Галтель стеклоткань ЭЗ-200 2х80 или Т11- ТВГ 1 слой
51 Рейка, обвязка кницы сосна 20х20
52 Обвязка шпангоута №2 сосна 20х20
53 Обвязка шпангоута №2 сосна 20х20
54 Обвязка шпангоута №3 фанера 10х20
55 Рейка шпангоут №6 сосна 20х20
56 Зашивка бортов фанера 4
57 Обвязка шпангоут №5 фанера 10х20 10
58 Обвязка шпангоута №3 фанера 10х20 10
59 Обвязка шпангоута №4 фанера 10х20 10
60 Стенка фанера 6
61 Полубимс сосна 20х40
62 Боковина фанера 6
63 Ступень фанера 8
64 Обвязка, рейка сосна 20х20
65 Рейка сосна 20х20
66 Опора крышки сиденья фанера 8х40 8
Количество фанеры формата 1.22х2.44м ФСФ, сорт 2-4 или выше
фанера 10мм 1 лист
фанера 8мм или 9мм 5 листов
фанера 6 мм 6 листов
фанера 4мм 1 лист

В районе форштевня проклеивается 10 полосами ткани ЭЗ-200 или 5 слоёв Т11- ТВГ
Вложения
конструкция корпуса1.gif
конструкция корпуса2.gif
развёртки.gif
Теоретический.gif
чертежи шпангоутов.gif
Димон26МВ
Аватара пользователя
semen4enko
Полноправный участник
 
Сообщения: 47
Зарегистрирован: 03 май 2011, 12:06
Откуда: Минеральные Воды
Репутация: 0 [ ? ]
Благодарил (а): 8 раз.
Поблагодарили: 9 раз.

Re: лодка своими руками

Сообщение vodjnoj ооо » 02 фев 2012, 18:03

semen4enko какой вес у лодки получился? И какой мощи мотор можно вешать? Это так называемый картоп Игоря. Из всех сделанных мной лодок, эта больше всего мне нравится. Я её легко в одно е...ло с прицепа и до воды и обратно. Под пятисильным мотором опятьже в одно е...ло уверенно глиссирует. И рыбачить с неё удовольствие. На большом водоеме на волне конечно не совсем комфортно. Под ветерком 12 вдвоем летит очень быстро, даже очковато немного.
vodjnoj ооо
Свой
 
Сообщения: 55
Зарегистрирован: 04 окт 2010, 20:38
Репутация: 0 [ ? ]
Благодарил (а): 0 раз.
Поблагодарили: 8 раз.

Re: лодка своими руками

Сообщение semen4enko » 02 фев 2012, 21:28

vodjnoj ооо писал(а):semen4enko какой вес у лодки получился? И какой мощи мотор можно вешать? Это так называемый картоп Игоря. Из всех сделанных мной лодок, эта больше всего мне нравится. Я её легко в одно е...ло с прицепа и до воды и обратно. Под пятисильным мотором опятьже в одно е...ло уверенно глиссирует. И рыбачить с неё удовольствие. На большом водоеме на волне конечно не совсем комфортно. Под ветерком 12 вдвоем летит очень быстро, даже очковато немного.

лодку не взвешивал и не испытывал, но в гараже сделал крепления чтобы вешать под потолок, так поднимаю сам, по ощущениям 50кг.
Димон26МВ
Аватара пользователя
semen4enko
Полноправный участник
 
Сообщения: 47
Зарегистрирован: 03 май 2011, 12:06
Откуда: Минеральные Воды
Репутация: 0 [ ? ]
Благодарил (а): 8 раз.
Поблагодарили: 9 раз.

Re: лодка своими руками

Сообщение blokir » 03 фев 2012, 07:15

semen4enko писал(а):после испытаний своей первой лодки ,буду пробовать построить СЕВЕР 420
Спецификация конструкции корпуса моторной лодки "Север 420"

Основные технические характеристики:
Длина наибольшая, м – 4.2
Ширина наибольшая, м – 1.7
Ширина по скуле, м – 1.5
Килеватость на транце, градусов – 16
Ширина гидролыжи, м – 0.2
Вес корпуса, без мотора, кг – 190
Грузоподъёмность, кг – 400
Пассажировместимость, чел – 4
Высота транца, мм - 380
Мощность подвесного двигателя, л.с. -20-40


если у тебя получится собрать такую, я следующий на очереди буду!!!
Отдых на Волге без лодки - это преступление!!!
_______________________________________________________

"Шторм"-280Т, Торнадо 430 BC - 2Т, 2 л.с.
Аватара пользователя
blokir
Аксакал
 
Сообщения: 274
Зарегистрирован: 06 окт 2010, 14:07
Откуда: Ставрополь и Ставрополький край в частности
Репутация: 1 [ ? ]
Благодарил (а): 21 раз.
Поблагодарили: 34 раз.

Re: лодка своими руками

Сообщение ANDREY674 » 04 фев 2012, 15:04

blokir писал(а):Мощность подвесного двигателя, л.с. -20-40

А исходя из каких соображений ГИМС определяет допустимую мощность мотора?
изготовление п о р н о г р а ф и и преследуется по Закону.
--------------------------------------------------------------------------------
"FLINC T320L" , " ForwardFBC-520B" 2.7л.с. "NOMAD NL 160F" 5 л.с.
Аватара пользователя
ANDREY674
Гуру
 
Сообщения: 4308
Зарегистрирован: 21 сен 2011, 22:14
Откуда: Санкт Петербург (Металлострой)
Репутация: 15 [ ? ]
Благодарил (а): 223 раз.
Поблагодарили: 298 раз.

Re: лодка своими руками

Сообщение semen4enko » 04 фев 2012, 22:37

ANDREY674 писал(а):
blokir писал(а):Мощность подвесного двигателя, л.с. -20-40

А исходя из каких соображений ГИМС определяет допустимую мощность мотора?

наш гимс на нвопятигорском озере? наверное на глазок.
Димон26МВ
Аватара пользователя
semen4enko
Полноправный участник
 
Сообщения: 47
Зарегистрирован: 03 май 2011, 12:06
Откуда: Минеральные Воды
Репутация: 0 [ ? ]
Благодарил (а): 8 раз.
Поблагодарили: 9 раз.

Re: лодка своими руками

Сообщение putalo » 05 фев 2012, 10:25

semen4enko
Не, от полноты налитого стакана! :-) Как в дагестан скатался? Что там с местными ГИМСами, может правда у них зарегиться? :smu:sche_nie:
Что ни рожа-то СерОжа! Бриз-280Т+Partner 1.3 пони. 8-928-три473265
Аватара пользователя
putalo
Аксакал
 
Сообщения: 248
Зарегистрирован: 20 май 2010, 11:31
Откуда: Минеральные Воды
Репутация: 0 [ ? ]
Благодарил (а): 14 раз.
Поблагодарили: 36 раз.

След.

  • Похожие темы
    Ответы
    Просмотры
    Последнее сообщение

Кто сейчас на конференции

Сейчас этот форум просматривают: нет зарегистрированных пользователей и гости: 19